VENTE Terrain à SAINT PIERRE D'IRUBE (64990)

EXCLUSIVITE
site annonces immobilieres : photo


                                           A Saint Pierre d’Irube, Ourouspoure, 

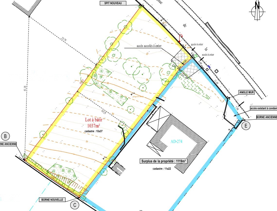
Terrain constructible de 1037 m² en secteur urbain. Emplacement très intéressant, présentant un versant Sud préservé des vis-à-vis et face à la nature, et adossé à une route pratique  pour accéder, à pied ou en voiture, en bus ou à vélo, à tous types de commerces, écoles et services. Idéal pour une habitation et/ou activité commerciale ou libérale. 

Emplacement stratégique, à la sortie de l'agglomération Biarritz/Anglet/Bayonne, et tout proche de l'accès aux autoroutes A63/A64. Gare TGV à 5 km. Aéroport de Biarritz à 15 mn.



Référence du bien : MCT1713 Prix : 336 000 €
 Plus d'informations sur cette annonce :








DPE : ExemptéGES : Exempté

atypique proche bayonne proche biarritz maison-villa


Ajouter à ma selectionRetour à la page d'accueil

Annonce précédenteRetour à la listeAnnonce suivante




Achat - Vente - Maisons / Villas - Demeures / Propriétés - Ferme / Moulins - Appartement - Terrains - Pays Basque - Côte Basque - Landes - Maisons à vendre - Propriété à vendre -
Real Estate Agency - Houses for sale - Propriéties - Agencia Inmobiliaria -Casas en venta - Propiedades - Propriétés Equestres - Equestrian Properties - Houses - Propriéties
Maison à vendre à Bayonne Maison à vendre à Biarritz